FACTS
| Projektentwicklung | |
| Standort | Hvar | Kroatien |
| Jahr | 2016 |
| Typologie | Wohnbau |
| Wohneinheiten | 3 |
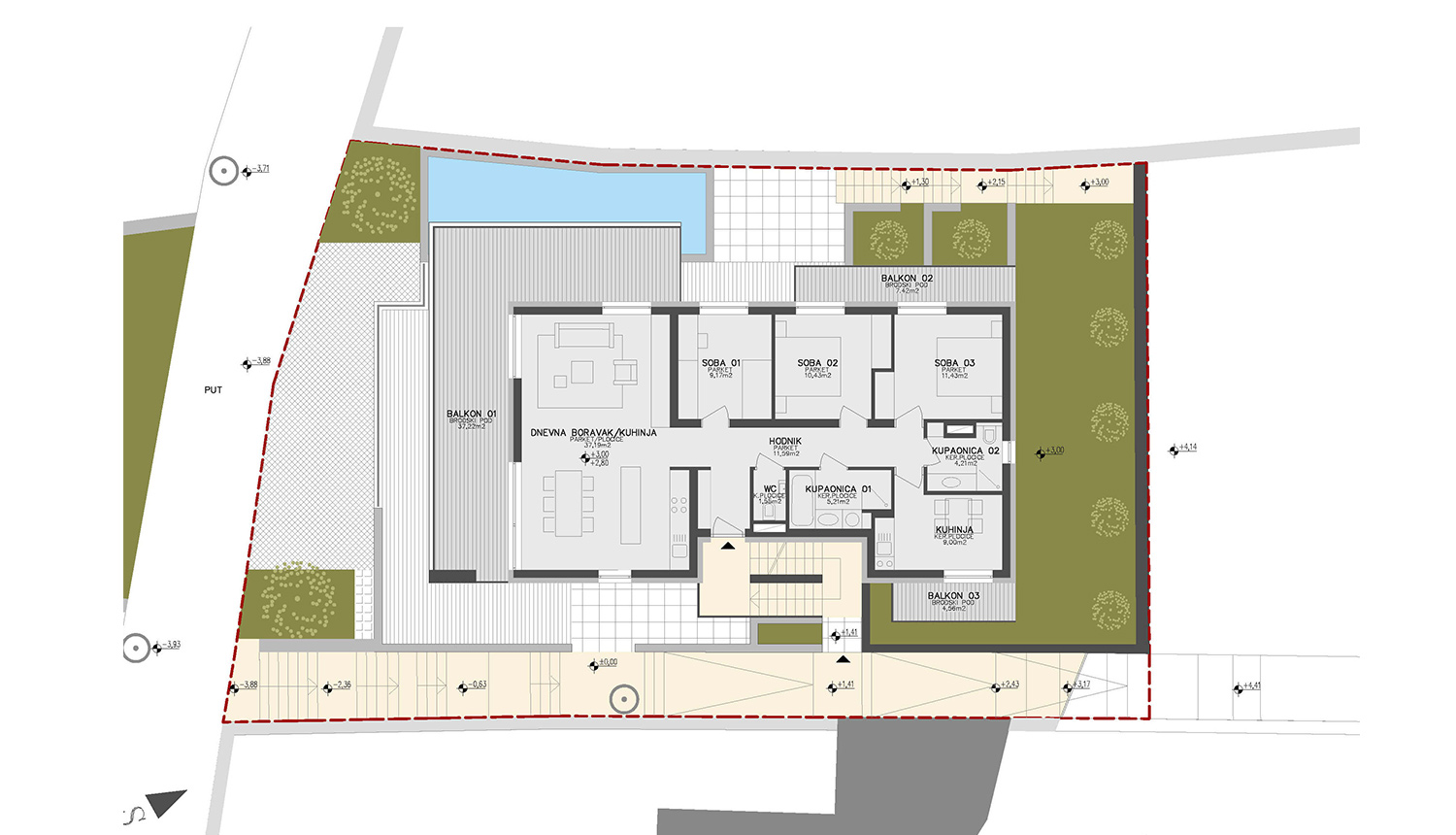
| NNF | 280m² |
| Baubeginn | 2023 |
Konzept
Das Projekt verfolgt ein nachhaltiges und modernes Wohnkonzept, das auf Funktionalität und eine ästhetisch ansprechende Gestaltung abzielt. Die Gebäude sind modular aufgebaut und verbinden Holz- und Putzfassaden, was eine natürliche, zeitlose Anmutung schafft. Durch den Einsatz nachhaltiger Materialien und energieeffizienter Bauweise werden ökologische Standards berücksichtigt. Die architektonische Gestaltung zielt darauf ab, eine angenehme Wohnatmosphäre zu schaffen und zugleich eine harmonische Eingliederung in die umgebende Bebauung zu gewährleisten.
Lage
Das Bauvorhaben befindet sich in Eggersdorf, einer ländlichen Umgebung, die durch ihre Ruhe und Naturnähe geprägt ist. Die Lage bietet eine Verbindung zu urbanen Zentren, bleibt jedoch in einer ruhigen, wohnlichen Gegend. Durch die geografische Positionierung können Bewohner die Vorzüge des Landlebens genießen und gleichzeitig eine gute Anbindung an das Stadtzentrum aufrechterhalten.
Außenraumgestaltung
Die Außenflächen sind so gestaltet, dass sie eine harmonische Verbindung zwischen den Gebäuden und der natürlichen Umgebung schaffen. Die Verwendung von Holzelementen in der Fassade spiegelt den natürlichen Charakter wider und schafft eine warme Atmosphäre. Durch Balkone, Terrassen und überdachte Eingangsbereiche werden den Bewohnern private Außenbereiche geboten, die den Komfort und die Nutzbarkeit steigern. Zudem sorgen umliegende Grünflächen und Wege für eine freundliche und einladende Umgebung, die zur Gemeinschaft und Erholung beiträgt.






